for SALE
光柱のある都市型住宅:仙台市青葉区上杉三丁目
価格:2億9,800万円
都市にありながら、空の光を巧みに取り込み、プライバシーが守られた豊かな暮らしを実現した住まいです。地下から屋上まで続く5層構成は、中央にある吹き抜けのパティオが各階へ自然光を導き、建物全体に一体感と開放感をもたらします。
すっきりとしたモノトーンの外観は高級住宅らしいハイセンスな印象です。(※写真、間取りは現況優先)
【LDK】白を基調としたLDKは明るく清らかな雰囲気。連続したスリット開口が自然光を均等に導き、室内全体へ心地よい明るさを届けます。
【キッチン】家族とのコミュニケーションと使い勝手を両立させた、対面式のL字型キッチン。
【1階ホール】スリット階段とガラスの間仕切りによって視線が抜け、閉塞感を感じさせないホールに。床に使用した大理石調タイルが空間に上質さを添えています。
【3階ホール】光と視線が通り抜ける、明るさと透明感に包まれたホール。渡り廊下を抜けてLDKへとたどり着く動線は、日常を特別なひとときに演出します。
【バスルーム】ベージュのタイルとガラスモザイクが織りなす上質なバスルーム。2つのへッドレストを備え、家族でゆったりと過ごせるホテルライクな空間です。
【前室】白を基調とした明るく爽やかな上階から一転、趣のある地階。異なるインテリアを楽しめます。
【和室】朱赤の壁が印象的な掘りごたつ付きの和室。パティオと隣接し、地下にありながら開放感と趣を感じさせる空間です。
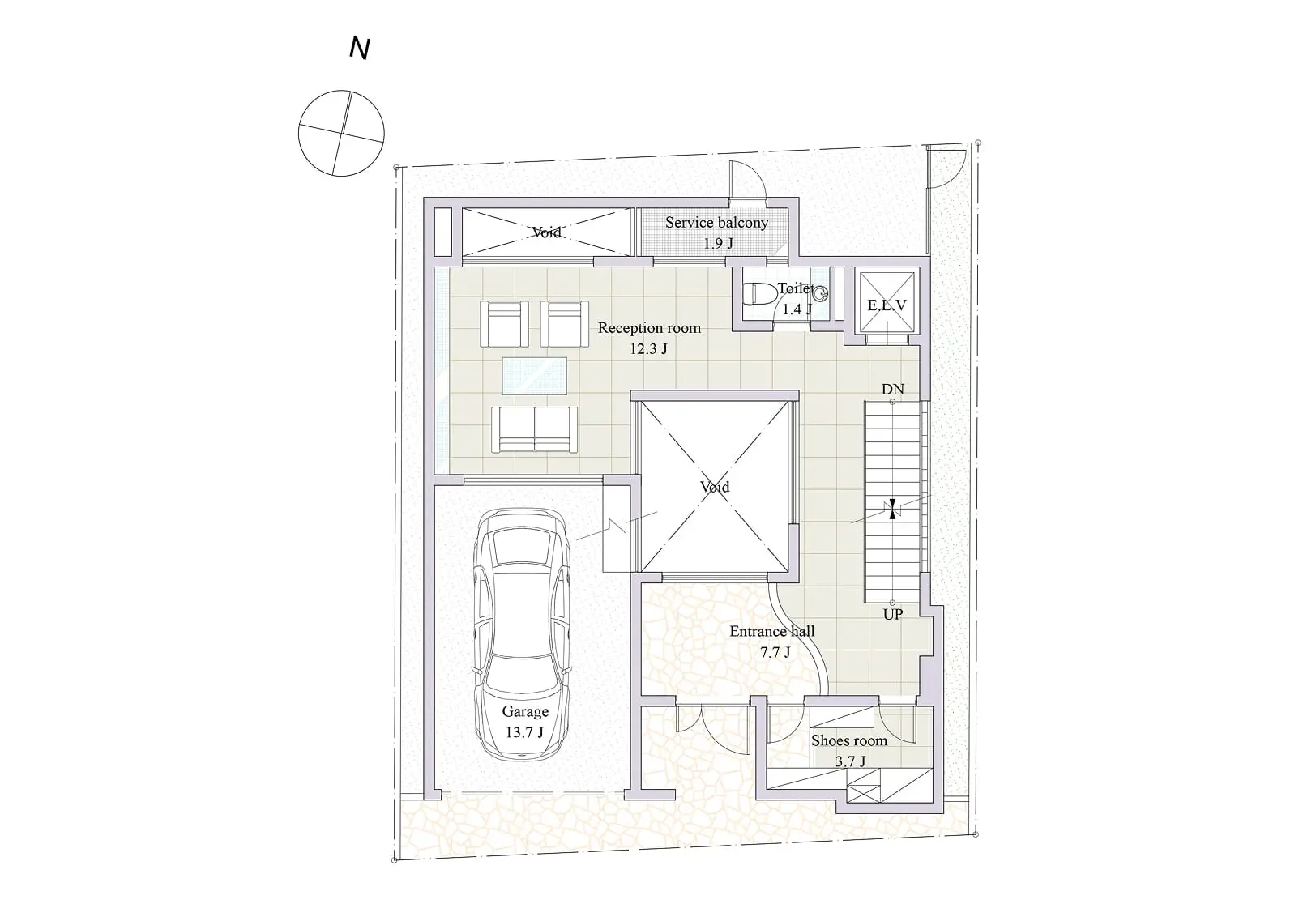
間取り
物件概要
| 所在地 | 仙台市青葉区上杉3丁目 |
|---|---|
| 最寄り駅 | 仙台市地下鉄南北線 勾当台公園駅 徒歩12分 |
| 価格 | 2億9,800万円 |
| 間取り | 6LDK |
| 建物面積 | 327.30㎡ |
| 階数 | 地下 1 階地上3階建て |
| 建築年 | 2015年11月 |
| 建物構造 | RC |
| 土地面積 | 140.60㎡ |
| 道路 | 一方 (南 6m 公道 間口11m) |
| 都市計画 | 市街化区域 |
| 用途地域 | 第二種住居地域 |
| 建蔽率 / 容積率 | 60% / 200% |
| 土地権利 | 所有権 |
| 取引態様 | 一般媒介 |
| 引き渡し時期 | 相談(居住中) |












